Claverdon new homes

22 Jan 2026

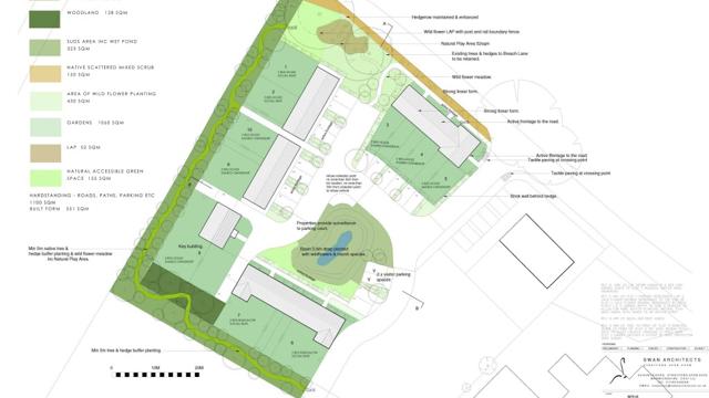
Claverdon Plan
Claverdon Site Map CROP

Ten affordable, environmentally-friendly homes are on their way in Claverdon.

The ten homes, a second phase of affordable homes off Breach Lane in Claverdon, are due to start in Spring 2026.

Energy-efficient and truly affordable homes

The homes, which add to three affordable homes completed in 2010, will be prioritised for people with a connection to the village, enabling local people to stay in, or return to, Claverdon.

Energy-efficient and truly affordable homes

The homes, which add to three affordable homes completed in 2010, will be prioritised for people with a connection to the village, enabling local people to stay in, or return to, Claverdon.

They will be designed to fit in with the village setting; to meet the expected new Future Homes Standard; and to ensure that living in the homes, beyond the rent, is genuinely affordable for the residents.

To achieve this, all homes will:
  • be fitted with air source heat pump technology for heating and hot water
  • be installed with photovoltaic solar panels to generate electricity
  • have solar batteries installed to enable unused energy to be stored
  • receive an ‘A’ Energy Performance Certificate (EPC) rating
  • be installed with electric vehicle charging points
  • have home working spaces.

Mix of homes

The scheme, will provide a mix of type, size and tenure of homes, identified in a Housing Needs Survey in 2022. There will be:

Four for social rent:
  • x2 2-bed houses
  • x2 2-bed bungalows
Six for shared ownership:
  • x5 2-bed houses
  • x1 3-bed house
Bio Diversity

Improving biodiversity

The scheme will improve the biodiversity of the area, with measures including wildflower meadow planting, and new bird and bat boxes. Trees and hedgerows will be retained, and more local species hedges and trees will also be planted.

Funding and support

Stratford-on-Avon District Council recently confirmed a grant of £738,000 to deliver the homes. We’re extremely grateful for their ongoing support to provide more affordable homes for local people.

Cllr George Cowcher, Deputy Leader and Planning and Economic Development Portfolio at Stratford-on-Avon District Council said: “This is really how affordable well-built and maintained housing should be delivered to meet local identified housing needs.  The provision of these homes built with green technology to high energy efficiency standards will also help households with the cost of living as well as providing warm homes.”

We’re also grateful for Homes England’s grant of £690,400 and their commitment to drive regeneration and housing delivery in rural communities.